地下室防渗漏工艺工法手册,23张节点做法卡片!
发布时间:2022-05-10
桩头防水构造节点施工工艺
风险与通病:桩头部位防水控制不到位,底板渗水
工艺展示:
工艺标准(质量验收标准):
1、桩头要剔除到设计标高,并用聚合物水泥砂浆找平桩侧剔除至混凝土密实处;
2、清除基层上的灰尘、混凝土等,用清水冲洗干净,基面要求潮湿,但不得有明水;
3、桩头涂刷水泥渗透结晶型防水涂料,应延伸至桩头周边不少于300mm范围,分两层涂刷,待第二层涂料半干状态后开始喷水养护,养护时间不小于3天;
4、底板SBS防水卷材应施工至桩根部,即与渗透结晶及聚合物水泥砂浆防水层搭接不少于300mm,桩身与防水卷材交界处采用防水密封膏密封;
5、桩头钢筋根部采用遇水膨胀止水条(环);
6、底板防水层及止水膨胀条施工完后,应及时做40厚C20细石混凝土保护层。
管控要点:
1、破桩后如出现渗水,应采取相应的堵漏措施;
2、涂刷水泥基渗透结晶型防水涂料必须连续、均匀,待第二层涂料半干状态后开始;
3、做好底板SBS防水卷材与渗透结晶的搭接;
4、遇水膨胀止水条(环)安装后,应采取保护措施,底板混凝土浇筑前,止水条(环)不得破损、泡水;
5、细石混凝土保护层应及时施工。
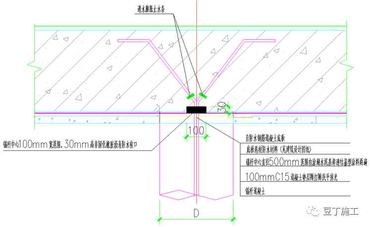
抗浮锚杆防水构造节点施工工艺
风险与通病:桩头部位防水控制不到位,影响底板防水
工艺展示:
工艺标准(质量验收标准):
1、锚杆混凝土上部,混凝土垫层应保证厚度达到100mm厚,垫层随打随找平抹光;
2、锚杆中心直径500mm范围内涂刷水泥基渗透结晶型防水涂料两遍,待第二层涂料半干状态后开始喷水养护,养护时间不小于3天;
3、防水卷材施工至锚杆钢筋根部,在锚杆中心100mm宽范围、采用30mm高非固化橡胶沥青收口;
4、锚杆钢筋根部套遇水膨胀止水环。
管控要点:
1、桩头防水基层处理应到位,不得存在浮浆;
2、桩头、锚杆钢筋采用密封膏进行包裹,上部再加遇水膨胀止水环;
3、桩头、锚杆处防水卷材设置附加层;
4、桩头侧壁不同防水材料交接部位防水应搭接,保证防水构造连续;
5、渗透结晶每层涂刷应厚薄均匀、不漏刷、不透底。每层厚度及总厚度应符合产品和设计要求,且总厚度不应小于0.8mm。
地下室抗渗混凝土防开裂施工工艺
风险与通病:地下室底板、外墙、顶板因水化热和温度收缩造成开裂;地下室底板、顶板因施工组织不当造成开裂;
工艺标准(质量验收标准):
(一)施工准备:
1、抗渗混凝土所用的砂、石应符合下列规定:(1)石子最大粒径不宜大于30mm,并不得大于泵管直径的(125mm)1/4:吸水率不应大于1.5%。不得使用碱活性骨料。(2)砂采用中砂。
2、抗渗混凝土根据工程需要掺入的减水剂、膨胀剂等外加剂,其品种和掺量必须通过试验确定。其质量应符合国家或行业标准一等品及以上的质量要求。抗渗混凝土掺入的粉煤灰的级别不低于二级,掺量不宜大于20%。
3、抗渗混凝土每立方米混凝土中各类材料的总碱含量(Na2O当量)不得大于3kg;
4、严格控制混凝土塌落度,防水混凝土采用预拌混凝土时,入泵坍落度宜控制在120mm~140mm,坍 落度每小时损失不应大于20mm,坍落度总损失值不应大于40mm;当塌落度损失不能满足要求时,可加入原水胶比水泥砂浆或同品种减水剂搅拌,严禁加水。
(二)施工方法
1、防水混凝土浇筑前测量混凝土温度,严格控制混凝土的入模温度,不得大于30℃;在结构构件内设置混凝土温度计,测量控制混凝土内外温差不大于25℃,表面与大气温度差值不大于20℃,发现异常采用覆盖保温及洒水养护措施;
2、浇筑混凝土时应分段分层连续进行,使用插入式振捣器应快速插入缓慢拔出,插点要均匀排列,逐点移动,顺序进行,不得遗漏,做到均匀振实。移动间距不大于振捣作用半径的1.5倍(一般为20--30cm,)。振插上一层时应插入下层5-10cm,以使两层混凝土结合牢固,不得过振、漏振,以混凝土表面不再下沉,翻处水泥浆且不再出现气泡为止,通长情况下点振捣时间为20~30s;
3、防水混凝土浇筑完成后应及时进行养护(洒水或覆盖薄膜养护),养护周期不得小于14d。当日最低气温低于5℃时,不应采用洒水养护,必须采用覆盖的养护方式,具体可采用覆盖塑料薄膜、塑料薄膜加麻袋、塑料薄膜加土工布等方式;
4、顶板及底板混凝土浇筑完成后,在混凝土土终凝前进行多次抹压并覆盖,防止混凝土表面失水裂缝,已出现的表面裂缝,在混凝土终凝前抹压修整。
(三)施工组织
1、砼强度达到1.0Mpa以前,严禁在其上堆物,尤其使用塔吊吊钢筋,防止因冲击而造成裂缝;
2、地下室顶板浇筑后,如需要上砼罐车、重型运输车辆,行车路线应与消防通道重合,并通过设计计算,明确载重要求,不得让超过载重要求的车辆上顶板;除消防通道外的顶板部位,不得上重车;
3、沉降后浇带严禁提前浇筑;
4、地下室顶板后浇带应采用独立支撑,不得拆除后再重新架立;在后浇带浇筑前,支撑架体不得拆除。
管控要点:
1、严格管控抗渗混凝土外加剂掺量;
2、浇筑时严禁加水;
3、养护方式及养护时间应符合要求;
4、地下室顶板混凝土强度应达到100%,消防通道上方可允许上重车;
5、顶板上重车必须通过设计计算,并考虑一定的安全系数;
6、沉降后浇带严禁提前浇筑;
7、地下室顶板后浇带应采用独立支撑,不得拆除后再重新架立。
地下室底板防水施工工艺
风险与通病:地下室底板渗漏
工艺展示:
工艺标准(质量验收标准):
1、底板防水材料按设计图纸要求,一般采用卷材防水。根据不同防水卷材的特性,应合理选择自粘法或热熔法进行施工。
2、采用实心砖砌筑240mm厚永久性保护墙,作为砖胎膜,砖胎膜应抹1:2.5水泥砂浆找平层;
3、阴角处用水泥砂浆做出R50圆角,阳角处应打磨成圆弧;
4、防水层铺贴前,基层应干燥,涂刷基层处理剂,不得漏刷、透底;
5、阴阳角处应做防水附加层,范围超过各边角外部延伸250mm;
6、两幅卷材短边和长边的搭接宽度均不应小于10mm。采用多层卷材时,上下两层和相邻两幅卷材的接缝应错开1/3幅宽,且两层卷材不得相互垂直铺贴;
7、防水层在永久保护墙处甩槎,预留出至少300mm作为外墙防水搭接长度,顶端临时用石灰砂浆砌四皮砖;
8、外挑底板浇筑时应将底板外挑部分表面压光,混凝土拆模后,应及时将防水层沿外挑底板铺贴,注意保证搭接长度100mm,上反外墙至超过外墙水平施工缝不小于300mm。
管控要点:
1、严格控制垫层找平度,卷材铺贴前基层应清扫干净,尤其是截桩头周围松散混凝土必须清理干净;
2、防水卷材施工前基层应平整、清洁、干燥,阴阳角均做成圆弧;
3、防水卷材铺贴方向及搭接长度符合要求;
4、防水面无鼓泡、皱折、脱落和大的起壳现象。交接面部位做防水加强处理;
5、钢筋绑扎和焊接过程中注意对防水卷材的保护,破损处及时修补。
地下室外墙防水施工工艺
风险与通病:地下室外墙渗漏
工艺展示:
地下室外墙防水涂膜常规做法(自内至外)
1、钢筋混凝土自防水墙板
2、对拉螺栓洞处理、混凝土接茬处打磨、蜂窝麻面等处批平抹光
3、2厚聚氨酯防水涂膜
4、20厚XPS挤塑聚苯板(五点专用粘接剂粘结法)
5、回填土
地下室外墙防水卷材常规做法(自内至外)
1、钢筋混凝土自防水墙板
2、对拉螺栓洞处理、混凝土接茬处打磨、蜂窝麻面等处批平抹光
3、涂刷基层处理剂
4、阴阳角、穿墙管道根部、后浇带、施工缝做防水附加层
5、4厚SBS改性沥青防水卷材
6、20厚XPS挤塑聚苯板(五点专用粘接剂粘结法)
7、回填土
工艺标准(质量验收标准):
1、防水层施工之前应做好螺杆洞封堵,阴角处做R50圆角施工,阳角处应打磨做圆弧,外墙混凝土接缝处较大错台应打磨平顺,修补平整墙面空洞;
2、阴阳角、穿墙管道根部、后浇带、施工缝应设置防水附加层;
3、配制聚氨脂涂膜防水材料应随用随配,配制好的混合料宜在2h内用完;
4、防水涂膜施工:涂刷时要求薄厚均匀一致,对平面基层以涂刷3~4遍为宜,每遍涂刷量为0.8~1.0kg/m2;对立面基层以涂刷3~4遍为宜,每遍涂刷量为0.5~0.6kg/m2;上下两遍防水涂料涂刷方向应互相垂直;底板与立墙相连接的阴角部位,应铺设聚酯纤维无纺布进行增加处理;
5、防水卷材施工:热熔法粘贴,卷材搭接长度100mm,要求满粘,不得空鼓;
6、20厚XPS挤塑保温板应及时设置,专用粘接剂粘结,避免柔性防水层被破坏;
7、回填过程中有专人监护,防水层等无损伤。
管控要点:
1、防水基层必须干燥,经过监理验收,达到防水施工要求后,方可涂刷处理剂;
2、防水涂膜总厚度必须达到2mm;
3、保温板粘贴时要求片材拼缝严密,以防回填土时损伤防水涂膜;
4、回填土施工必须进行旁站,分层回填分层夯实。
地下室顶板防水施工工艺
风险与通病:地下室顶板渗漏
工艺展示:
工艺标准(质量验收标准):
1、对于种植覆土区和非种植覆土区,顶板防水均采用化学阻根防水卷材。
2、地下室顶板浇筑振捣密实,面层磨压不少于3遍;顶板需严格控制模板拆除时间, 避免结构顶板出现扰动裂缝;
3、防水层施工之前出顶板结构阴角、穿顶板套管根应做50mm直径圆弧,并设置防水附加层,延伸出各边角250mm;
4、防水卷材搭接长度100mm;遇墙上反至覆土层以上300mm;
5、细石混凝土刚防层浇筑时应调整好钢筋网片保护层大小,严禁网片贴底放置,面层应磨压密实,分格缝灌缝应饱满,贴200宽防水卷材盖住分隔缝。
管控要点:
1、卷材铺贴前基层应清扫干净,基层干燥,阴阳角均做成圆弧;
2、防水卷材铺贴方向及搭接长度符合要求;
3、防水面无鼓泡、皱折、脱落和大的起壳现象。交接面部位做防水加强处理;
4、应及时施工细石混凝土保护层。
止水钢板制作安装
风险与通病:地下室外墙、顶板渗漏
工艺展示:
工艺标准(质量验收标准):
1、L型、T型转角处止水钢板应采用成品构件;
2、放线准确定位,固定在墙、板中间且外露,连续布置;
3、先安装转角止水钢板,再安装直线段;转角段与直线段止水钢板搭接应达到100mm;
4、搭接焊必须采用双面满焊, 保证焊缝饱满、平滑,无漏焊 、无孔眼等缺陷;
5、止水钢板折角朝向迎水面。
管控要点:
1、止水钢板转角段与直线段搭接长度应达到100mm;止水钢板直线段之间搭接长度应不小于50mm,搭接处必须双面满焊;
2、浇筑前应彻底除锈
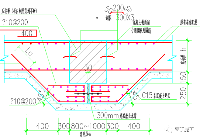
地下室底板伸缩后浇带防水构造节点施工工艺
风险与通病:地下室底板渗漏
工艺展示:
工艺标准(质量验收标准):
1、底板后浇带处局部降低150mm,增加防水附加层,材质同底板防水,防水端头延伸至放坡后再搭接300mm;2、底板后浇带两侧中间焊接埋设止水钢板,止水钢板上下采用钢筋骨架固定,后浇带砼侧面采用钢板网等有效隔离材料隔断;
3、止水钢板折角朝向迎水面,搭接长度不小于50mm,搭接处双面满焊;
4、伸缩后浇带应按设计要求,在其两侧混凝土龄期达到60天后,采用比设计强度等级提高一级的微膨胀混凝土及时浇筑密实。
管控要点:
1、底板后浇带处需增加防水附加层,防水端头延伸至放坡后再搭接300mm;
2、后浇带混凝土侧面钢板网应固定牢固,防止混凝土浇筑时外溢;
3、止水钢板设置应居中,搭接长度不小于50mm,搭接处应双面满焊;
4、后浇带混凝土浇筑前,底板两侧结合面应凿毛处理,浮浆、石块等杂物清除干净,充分湿润,并涂刷界面剂,后浇带处钢筋应除锈;
5、应注意后浇带浇筑时间,不得违反设计要求提前浇筑。
地下室外墙伸缩后浇带防水构造节点施工工艺
风险与通病:地下室外墙渗漏
工艺展示:
工艺标准(质量验收标准):
1、外墙后浇带两侧中间焊接埋设止水钢板,后浇带砼侧面采用钢板网等有效隔离材料隔断;
2、止水钢板折角朝向迎水面,搭接长度不小于50mm,搭接处双面满焊;
3、后浇带外侧采用混凝土预制板条或砌筑240mm厚砖墙,为地下室外墙防水施工和基坑回填创造条件;
4、后浇带处砖墙内外两侧各做一道防水卷材,内侧防水卷材与外墙防水层两边搭接不小于300mm;
5、伸缩后浇带应按设计要求,在其两侧混凝土龄期达到60天后,采用比设计强度等级提高一级的微膨胀混凝土及时浇筑密实。
管控要点:
1、后浇带混凝土侧面钢板网应固定牢固,防止混凝土浇筑时外溢;
2、止水钢板设置应居中,搭接长度不小于50mm,搭接处应双面满焊;
3、后浇带外侧砌筑240mm厚砖墙应采用实心砖,不得使用空心砖;
4、后浇带砖墙砌筑前,后浇带两侧结合面应凿毛处理,浮浆、石块等杂物清除干净,充分湿润,并涂刷界面剂,后浇带处钢筋应除锈;
5、后浇带处砖墙内外两侧各做一道防水卷材,内侧防水卷材与外墙防水层两边搭接不小于300mm;
6、应注意后浇带浇筑时间,不得违反设计要求提前浇筑。
地下室底板沉降后浇带防水构造节点施工工艺
风险与通病:地下室底板渗漏
工艺展示:
工艺标准(质量验收标准):
1、底板后浇带处局部降低250mm,增加防水附加层,材质同底板防水,附加层防水应铺贴至超过降低区300mm;
2、后浇带两侧中间焊接埋设止水钢板,止水钢板上下采用钢筋骨架固定,后浇带砼侧面及下部采用钢板网等有效隔离材料隔断;
3、止水钢板折角朝向迎水面,搭接长度不小于50mm,搭接处双面满焊;
4、橡胶止水带应留设在下部砼中间部位,沿后浇带通长设置,并与钢筋骨架固定牢固,止水带搭接处必须连接在一起;
5、橡胶止水带两侧砼之间留设30mm缝隙,需采用填缝材料密封;
6、沉降后浇带应按设计要求,待两侧混凝土龄期达到60天且主体封顶沉降稳定后封闭,且需设计认可确认后方可封闭,采用比设计强度等级提高一级的微膨胀混凝土浇筑密实。
管控要点:
1、后浇带混凝土侧面及下部钢板网应固定牢固,防止混凝土浇筑时外溢;
2、止水钢板设置位置应居中,搭接长度不小于50mm,搭接处应双面满焊;
3、橡胶止水带设置位置应居中,填缝应密封;
4、后浇带在新浇筑混凝土前,应将接缝处已有混凝土表面杂物清除,刷素水泥浆两遍后再进行浇筑,应注意后浇带浇筑时间,不得提前浇筑。
地下室外墙沉降后浇带防水构造节点施工工艺
风险与通病:地下室外墙渗漏
工艺展示:
工艺标准(质量验收标准):
1、后浇带处外侧局部突出250mm,增加防水附加层,材质同底板防水,附加层防水应铺贴至超过突出边沿300mm;
2、后浇带两侧中间焊接埋设止水钢板,止水钢板上下采用钢筋骨架固定,后浇带砼侧面及外部采用钢板网等有效隔离材料隔断;
3、止水钢板折角朝向迎水面,搭接长度不小于50mm,搭接处双面满焊;
4、橡胶止水带应留设在外侧砼中间部位,沿后浇带通长设置,并与钢筋骨架固定牢固,止水带搭接处必须连接在一起;
5、橡胶止水带两侧砼之间留设30mm缝隙,需采用填缝材料密封;
6、沉降后浇带应按设计要求,待两侧混凝土龄期达到60天且主体封顶沉降稳定后封闭,且需设计认可确认后方可封闭,采用比设计强度等级提高一级的微膨胀混凝土浇筑密实。
管控要点:
1、后浇带混凝土侧面及外部钢板网应固定牢固,防止混凝土浇筑时外溢;
2、止水钢板设置位置应居中,搭接长度不小于50mm,搭接处应双面满焊;
3、橡胶止水带设置位置应居中,采用垫块及绑丝将其固定,防止混凝土浇筑过程中偏位,填缝应密封;
4、后浇带在新浇筑混凝土前,应将接缝处已有混凝土表面杂物清除,刷素水泥浆两遍后再进行浇筑,应注意后浇带浇筑时间,不得提前浇筑。
5、浇筑混凝土时应从橡胶止水带两侧同时下料,振动棒应距橡胶止水带300mm以上并从两侧同时振捣,“快插慢拔”,振捣均匀,并按要求进行养护
地下室顶板后浇带防水构造节点施工工艺
风险与通病:地下室顶板渗漏
工艺展示:
工艺标准(质量验收标准):
1、顶板后浇带两侧中间焊接埋设止水钢板,后浇带砼侧面采用钢板网等有效隔离材料隔断;
2、止水钢板折角朝向迎水面,搭接长度不小于50mm,搭接处双面满焊;
3、顶板后浇带应按设计要求,伸缩后浇带在其两侧混凝土龄期达到60天后,采用比设计强度等级提高一级的微膨胀混凝土及时浇筑密实;沉降后浇带应按设计要求,待两侧混凝土龄期达到60天且主体封顶沉降稳定后封闭,且需设计认可确认后方可封闭;
4、地下室顶板后浇带浇筑后,外侧增加100厚细石砼,双向配筋,超过两侧接缝处350mm,放出45°斜坡,随压随抹平;顶板防水层在此处附加一道防水,材质同顶板防水,两侧应超过细石砼边沿300mm。
管控要点:
1、顶板后浇带必须设置独立支撑,不得与地下室顶板支撑架同时拆除;
2、后浇带混凝土侧面钢板网应固定牢固,防止混凝土浇筑时外溢;
3、止水钢板设置应居中,搭接长度不小于50mm,搭接处应双面满焊;
4、后浇带混凝土浇筑前,底板两侧结合面应凿毛处理,浮浆、石块等杂物清除干净,充分湿润,并涂刷界面剂,后浇带处钢筋应除锈;
5、应注意后浇带浇筑时间,不得违反设计要求提前浇筑。
后浇带放置期间的保护
风险与通病:为防止施工过程中上部结构掉落混凝土对后浇带钢筋的污染和防坠落伤害
工艺展示:
工艺标准(质量验收标准):
1、后浇带在清理后应及时封盖,避免钢筋锈蚀;
2、底板及顶板后浇带采用两侧用实心砖砌筑挡水台,用水泥砂浆表面抹灰,中间用木方做支撑,顶部用整板封盖,涂刷警戒油漆;
3、后浇带如果和塔吊基坑相连,可在基坑四周临时砌挡水砖墙200mm高,挡水坎外抹掺防水粉的水泥砂浆,防止积水渗透到后浇带内。
管控要点:
后浇带顶部用整板封盖,不得采用窄板条;封盖应连续、严密;
地下室外墙施工缝防水构造节点施工工艺
风险与通病:地下室外墙渗漏
工艺展示:
工艺标准(质量验收标准):
1、外墙与底板水平施工缝设置在底板上表面≥300mm处,并居中埋设300mm宽,3mm厚止水钢板,折角朝向迎水面,止水钢板搭接长度应不小于50mm,双面满焊;
2、拐角处提前加工成一体式直角止水钢板,焊接缝应错开拐角500mm以外搭接,禁止在转角处焊接,搭接长度不少于50mm,双面满焊;
3、地下室外墙水平施工缝处增加防水附加层,材质同外墙防水,附加层覆盖施工缝上下各300mm。
管控要点:
1、拐角处采用一体式直角止水钢板,禁止在转角处焊接;
2、止水钢板搭接长度不小于50mm,应双面满焊;
3、底板施工采用砖胎膜,应考虑到施工缝处防水附加层的留设。
地下室坡道施工缝防水构造节点施工工艺
风险与通病:地下室坡道底板、外墙及顶板渗漏
工艺展示:
工艺标准(质量验收标准):
1、施工缝处沿迎水面外侧各延伸500mm局部突出,45°放坡,保证砼局部增厚至不小于500mm,地下室坡道底板及外墙施工缝处采用止水钢板与橡胶止水带双层防水构造;且在靠近迎水面方面设置止水钢板;地下室坡道顶板施工缝处采用止水钢板,且在靠近迎水面方面设置止水钢板;
2、止水钢板折角朝向迎水面,搭接长度不小于50mm,搭接处双面满焊;施工缝采用钢板网等有效隔离材料隔断;
3、增厚部分在迎水面外侧增加防水附加层,材质同底板防水,附加层防水应铺贴至超过增厚区300mm;
4、止水钢板与橡胶止水带应留设在砼中间部位,沿施工缝通长设置,并与钢筋骨架固定牢固,橡胶止水带搭接处必须连接在一起。
管控要点:
1、拐角处采用一体式直角止水钢板,禁止在转角处焊接;
2、止水钢板搭接长度不小于50mm,应双面满焊;
3、橡胶止水条在安装时,应防止止水条受污染和受水的作用,一面影响使用效果。
地下室通道侧变形缝防水构造节点施工工艺
风险与通病:地下室坡道底板、外墙及顶板渗漏
工艺展示:
工艺标准(质量验收标准):
1、后浇带处外侧局部突出250mm,增加防水附加层,材质同底板防水,附加层防水应铺贴至超过突出边沿300mm;
2、后浇带两侧中间埋设橡胶止水带,橡胶止水带应留设在向迎水面外侧砼中间部位,沿后浇带通长设置,并与钢筋骨架固定牢固,止水带搭接处必须连接在一起;3、橡胶止水带两侧砼之间留设30mm缝隙,需采用填缝材料密封;4、沉降后浇带应按设计要求,待两侧混凝土龄期达到60天且主体封顶沉降稳定后封闭,且需设计认可确认后方可封闭,采用比设计强度等级提高一级的微膨胀混凝土浇筑密实。
管控要点:
1、后浇带混凝土侧面及外部钢板网应固定牢固,防止混凝土浇筑时外溢;
2、后浇带两侧及外部混凝土浇筑后,在终凝前应采用高压水枪对接缝处进行粗糙处理;
3、橡胶止水带设置位置应居中,采用垫块及绑丝将其固定,防止混凝土浇筑过程中偏位,填缝应密封;
4、后浇带在新浇筑混凝土前,应将接缝处已有混凝土表面杂物清除,刷素水泥浆两遍后再进行浇筑,应注意后浇带浇筑时间,不得提前浇筑。
5、浇筑混凝土时应从橡胶止水带两侧同时下料,振动棒应距橡胶止水带300mm以上并从两侧同时振捣,“快插慢拔”,振捣均匀,并按要求进行养护。
地下室外墙穿墙螺杆防水构造节点施工工艺
风险与通病:地下室外墙渗漏
工艺展示:
工艺标准(质量验收标准):
1、地下室结构迎水面模板紧固件应使用一次性止水螺杆,止水片双面满焊,尺寸为3×50×50mm;
2、控制外墙模板拆除时间,避免对止水螺杆造成扰动;
3、地下室外墙拆模后,将内衬垫块凿除,角磨机割除螺杆至基底,螺杆端头涂刷防锈漆,采用防水砂浆填塞并抹出突出外墙面5mm圆形灰饼,压实抹平;
4、外侧涂刷防水涂料加强层,直径100mm,厚度1.5mm,且均匀饱满。
管控要点:
1、止水片必须双面满焊;
2、止水片规格尺寸为3×50×50mm;
3、螺杆端头必须用角磨机割除至基底;
4、螺杆端头磨除厚应及时涂刷防锈漆;
5、加强防水涂膜层厚度应达到1.5mm。
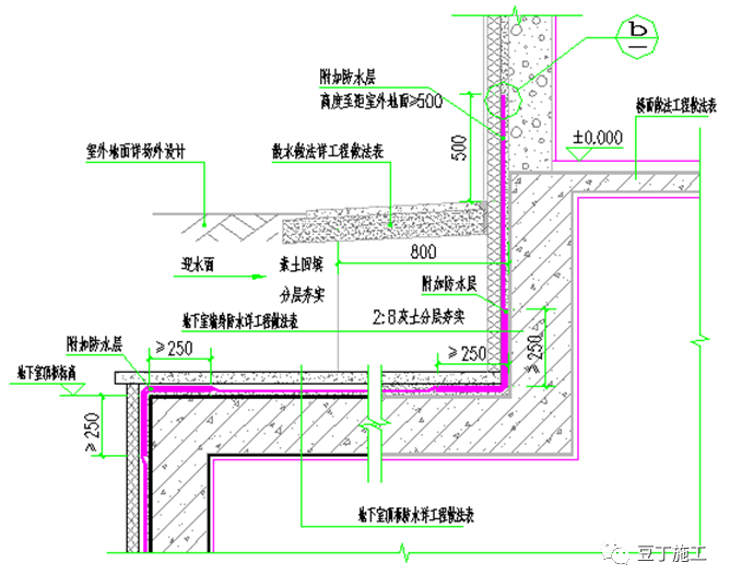
底板与外墙交接处防水构造节点施工工艺
风险与通病:地下室外墙渗漏
工艺展示:
工艺标准(质量验收标准):
1、地下室外墙与底板阴角处需做R50mm圆角,基层验收合格后方可施工防水;2、防水涂膜(防水卷材)加强层向上超过外墙水平施工缝不小于300mm;
3、地下室外墙防水层沿墙施工高于距室外地坪500mm处;
4、地下室顶板耐根穿刺防水卷材收头处采用间距250mm水泥钉钉50mm宽防锈金属压条固定。
管控要点:
1、地下室底板、外墙阴阳角部位应做防水附加层,附加层超过角部250mm;
2、如地下室外墙防水层为聚氨酯防水涂料,应将外墙防水涂料施工至底板顶部阴角处,并延伸至水平面300mm,底板防水层施工至底板顶部阴角处,及时做细石混凝土保护层。
顶板与外墙交接处防水构造节点施工工艺
风险与通病:地下室外墙渗漏
工艺展示:
工艺标准(质量验收标准):
1、地下室外墙防水层向顶板搭接250mm以上(如外墙防水为双层,则第一层向顶板搭接250mm,第二层向顶板搭接400mm);
2、顶板与外墙交接阳角增加防水附加层,材质砼顶板防水,附加层向外墙搭接250mm;
3、地下室顶板耐根穿刺防水层向外墙搭接应超过250mm;
4、外墙及顶板防水施工完成验收后,应及时施工防水保护层;
5、地下室外墙与顶板阴角处需做R50mm圆角,基层验收合格后方可施工防水;6、地下室外墙防水层沿墙施工至距室外地坪500mm处;采用间距250mm水泥钉钉50mm宽防锈金属压条固定,收口处附加一层1.5厚JS防水涂料补强。
管控要点:
1、地下室外墙与顶板防水层搭接长度应符合要求;
2、外墙防水层应在顶板上收边,顶板防水层应在外墙上收边,不得在阳角处收边;
3、外墙及顶板防水施工完成验收后,应及时施工防水保护层;
4、地下室外墙防水层沿墙施工至距室外地坪500mm,注意收边做法,收口处附加一层1.5厚JS防水涂料补强
电梯基坑防水构造节点施工工艺
风险与通病:电梯基坑渗漏
工艺展示:
工艺标准(质量验收标准):
1、电梯底坑、集水坑在阴阳角处必须施工防水附加层;
2、防水卷材施工完成后,必须及时施工防水保护层;
3、电梯底坑至集水坑预埋排水管位置、标高须符合设计图纸要求。
管控要点:
1、防水附加层搭接长度300mm;
2、防水卷材施工完成后,必须及时施工防水保护层
地下室外墙单管穿墙(刚性防水套管)防水构造施工工艺
风险与通病:地下室外墙渗漏
工艺展示:
工艺标准(质量验收标准):
1、刚性穿墙套管止水环50x5mm,双面焊接;
2、穿墙套管止水环居墙中设置,周边加强钢筋按要求绑扎牢固,混凝土振捣密实;
3、地下室外墙防水附加层卷入套管内100mm;
4、将管道穿过预埋套管,按图将位置尺寸找准,临时固定,套管两端分别采用沥青麻丝填塞,端头用防水油膏封堵密实;
5、外墙防水卷材施工时,管根处先施作防水附加层,再按要求施作防水层,收头卷材应紧贴管道,并采用金属管箍箍紧,密封膏密封。
管控要点:
1、钢制套管与止水环之间必须双面满焊,焊缝要连续饱满光滑,没有夹渣气泡、没有烧伤母材;
2、止水环的宽度≥50mm、厚度5mm,必须符合要求;
3、套管内外侧要涂刷 2 道防锈漆,漆面涂层要均匀,无漏涂;
4、混凝土要填塞密实,穿墙管要稳固,混凝土要保湿养护 7 天以上。
5、 防水套管内高外低,坡度≥5%
地下室外墙单管穿墙(柔性防水套管)防水构造施工工艺
风险与通病:地下室外墙渗漏
工艺展示:
工艺标准(质量验收标准):
1、柔性穿墙管定型加工,其中部止水环厚度应达到10mm;
2、穿墙管止水环居墙中设置,周边加强筋按要求绑扎牢固,混凝土浇筑密实;
3、管根处涂刷一道聚氨酯防水涂料,按要求施作防水附加层,再按要求施作防水卷材,收头卷材应紧贴管道,并采用金属管箍箍紧,密封膏密封。
管控要点:
1、止水环厚度必须符合要求;
2、套管内外侧要涂刷 2 道防锈漆,漆面涂层要均匀,无漏涂;
3、混凝土要填塞密实,穿墙管要稳固,混凝土要保湿养护 7 天以上。
4、 防水套管内高外低,坡度≥5%
地下室外墙群管穿墙防水构造节点施工工艺
风险与通病:地下室外墙渗漏
工艺展示:
工艺标准(质量验收标准):
1、预埋件埋设准确,群管焊接牢固,封头板与预埋角钢焊接牢固密封严密,加强筋按要求绑扎到位;
2、墙体混凝土浇筑完成后,灌注自流平无收缩水泥砂浆;
3、墙面防水卷材施工前封口钢板与混凝土墙面接缝处采用防水密封膏封闭严密,并按要求施作防水附加层;
4、金属构件应先涂刷一遍防锈漆,再按要求做防腐处理;
5、将管道穿过预埋套管,按图将位置尺寸找准,临时固定,然后一端以封口钢板将套管及穿墙管焊牢,再从另一端将套管与墙管之间的缝隙以防水材料(沥青麻丝、防水油膏、石棉水泥)填满后,用封口钢板封堵严密。
管控要点:
1、钢制套管与预埋钢板之间必须双面满焊;
2、预埋钢板的宽度、厚度必须符合要求;
3、群管之间的间隙必须满足焊接和防水施工要求。
